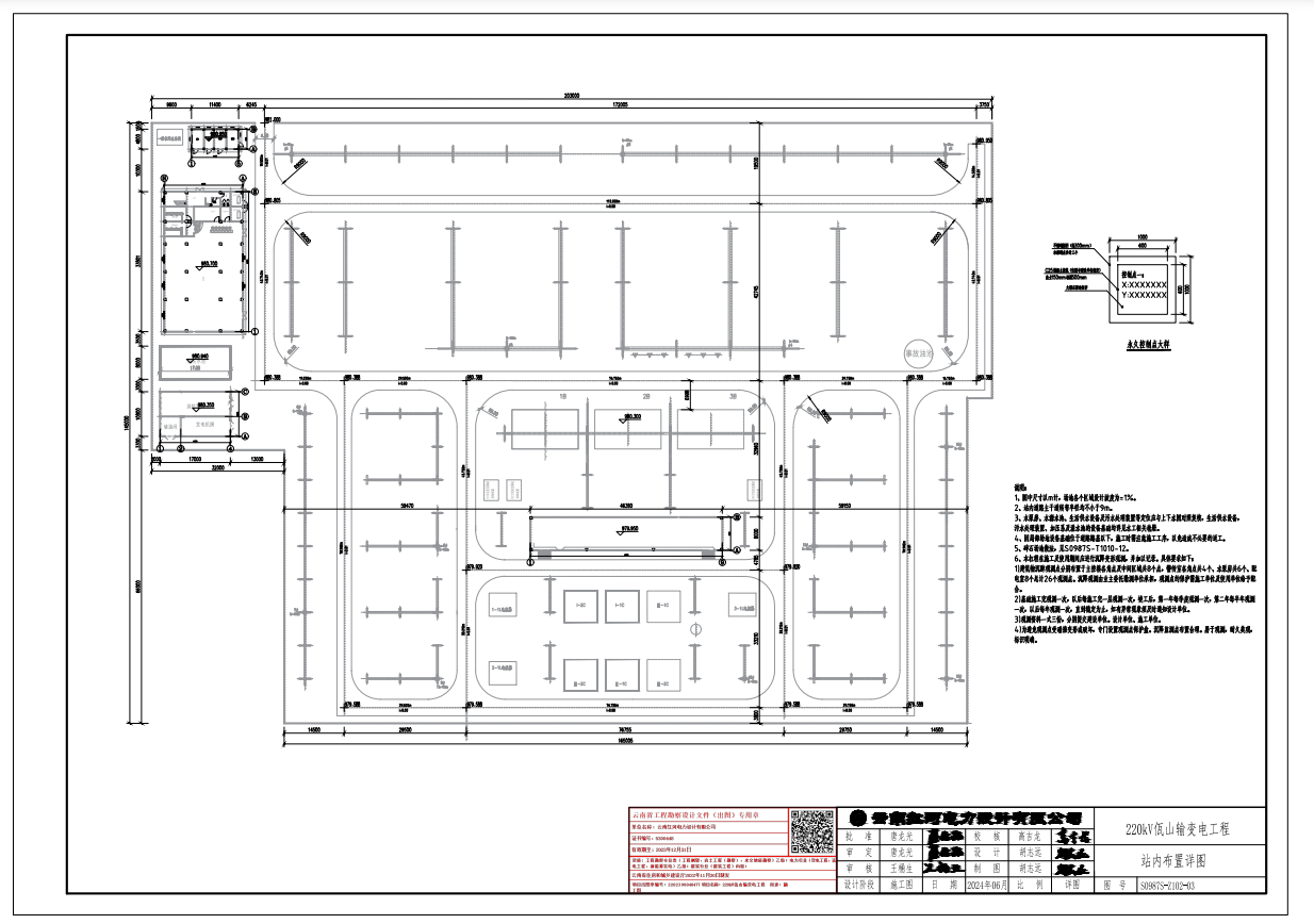
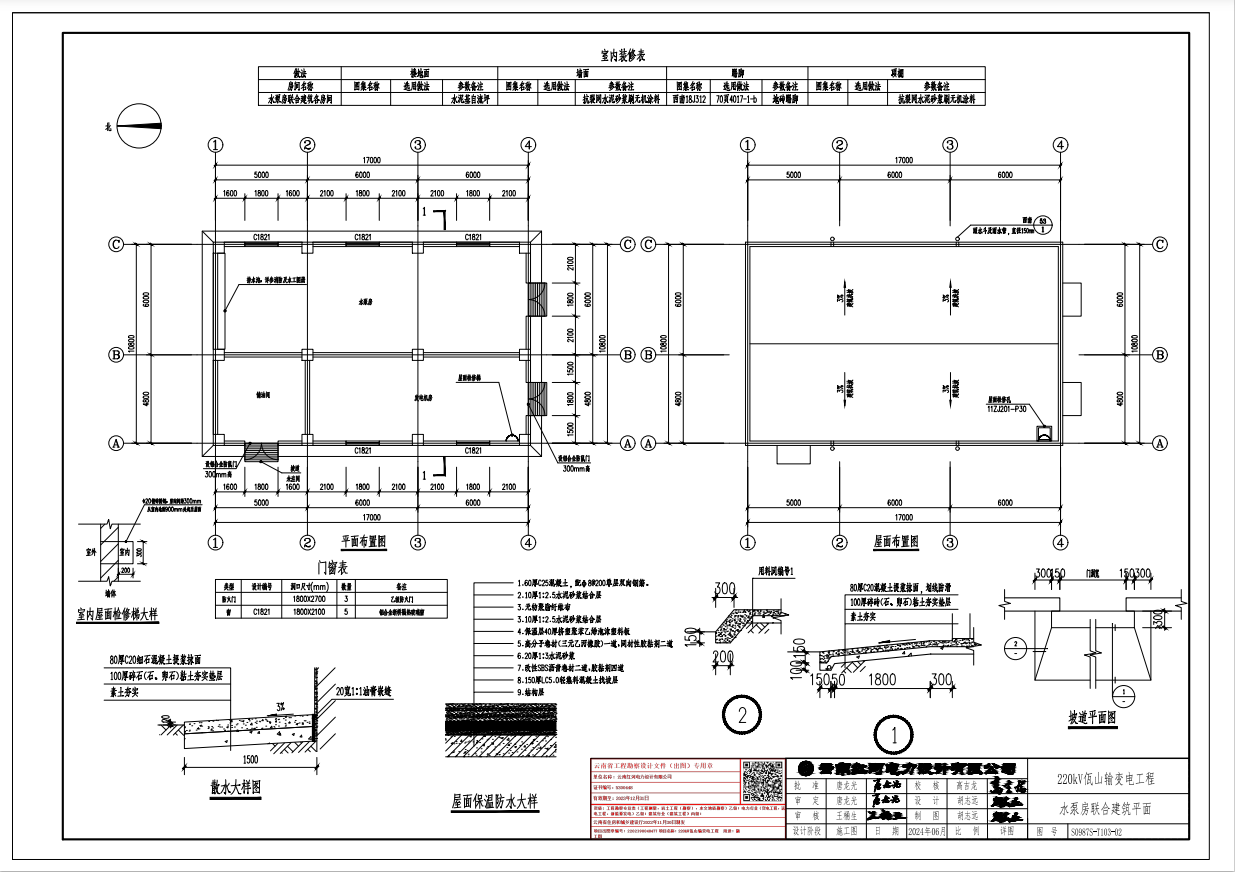
项目名称 | 220KV佤山(勐角)输变电工建设项目 |
类型 | 批前公示 |
公示类别 | 建设工程规划许可 |
建设单位 | 云南电网有限责任公司临沧供电局 |
用地位置 | 沧源佤族自治县勐省镇南约2公里处(勐省农场四队) |
用地性质 | 供电用地 |
建设工程规划许可证 | 地字第530927202500001号 |
核实情况 | 核载用地面积:29794平方米,总建筑面积:1664.03平方米,建筑密度:4.06%,绿地率:7.09%,容积率0.056% |
公示期限 | 7个工作日(2025年 9月 18日 至2025年 9月 28日) |
联系电话 | 0883-7126375 |
联系邮箱 | cyxgtj@163.com |
说 明 | 1.书面反馈(申请)意见发表时间或邮戳日不应超过公示期的最后一天24:00前,逾期视为无效意见。2.书面意见应注明真实联系人姓名、联系方式。3.信件寄往沧源县勐董镇广场路49号县自然资源局(请注明“公示通告”字样)。 |
公示网址 | |
附件 | 220KV佤山(勐角)输变电工建设项目建设工程许可总平面图 |
| |





