项目名称 | 临沧边境管理支队班洪边境派出所业务技术用房 |
类型 | 批前公示 |
公示类别 | 建设工程规划核实意见 |
建设单位 | 临沧边境管理支队班洪边境派出所业务技术用房 |
用地性质 | 机关团体 |
用地位置 | 沧源县班洪乡政府旁 |
建设工程规划许可证 | 建字第沧源县202300067号 |
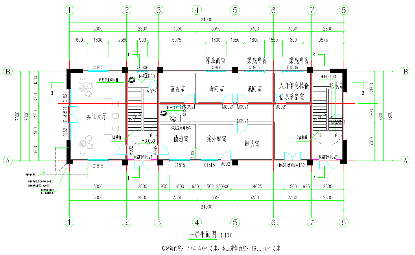
核实情况 | 核实证载土地总用地面积:3755.87平方米(其中:原规划用地面积3159.8平方米;新增规划用地面积596.7平方米);总建筑面积1835.67平方米(其中:原建面积1061.35平方米、拟建建筑面积774.4平方米),建筑基地面积659.16平方米(其中:原建筑基地面积465.56平方米,拟建筑基地面积193.6平方米);绿地面积:1138.54平方米(原)绿地面积:1153. 68平方米(核实)与原面积增加15.14平方米;绿地率:30.7%,总容积率:0.488;建筑密度:17.55%;建筑高度:14 米,停车位0个。 |
公示期限 | 7个工作日(2025年9月19日 至2025年9月28日) |
联系电话 | 0883-7126375 |
联系邮箱 | cyxgtj@163.com |
说明 | 1.书面反馈(申请)意见发表时间或邮戳日不应超过公示期的最后一天24:00前,逾期视为无效意见。2.书面意见应注明真实联系人姓名、联系方式。3.信件寄往沧源县勐董镇广场路49号县自然资源局(请注明“公示通告”字样)。 |
公示网址 | |
附件 | 临沧边境管理支队班洪边境派出所业务技术用房建设工程总平面图
|





