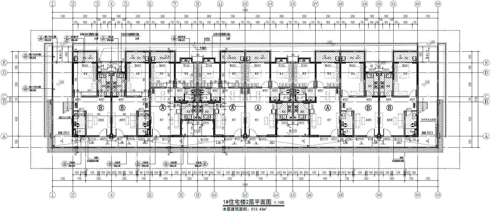
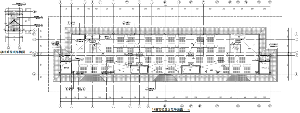
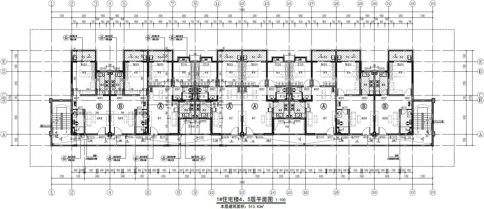
项目名称 | 沧源自治县2023年保障性租赁住房建设项目(勐来政府片区) |
类型 | 批前公示 |
公示类别 | 建设工程规划核实意见 |
建设单位 | 沧源县晟乾建设投资有限责任公司 |
用地位置 | 勐来政府片区 |
建设工程许可证 | 建字第沧源县202307007号 |
核实情况 | 该项目总用地面积934.23平方米,总建筑面积3149.99平方米(超出原批准面积73.4平方米);容积率3.37,建筑占地面积626.59平方米,建筑密度67.07%(原批准对应指标未命名);绿地面积162.97平方米,绿地率:17.44%;建筑高度18.65米,设停车位32个(其中5个充电桩)车位位于红线外。 |
公示期限 | 7个工作日(2025年9月24日 至2025年10月 9日) |
联系电话 | 0883-7126375 |
联系邮箱 | cyxgtj@163.com |
说明 | 1.书面反馈(申请)意见发表时间或邮戳日不应超过公示期的最后一天24:00前,逾期视为无效意见。2.书面意见应注明真实联系人姓名、联系方式。3.信件寄往沧源县勐董镇广场路49号县自然资源局(请注明“公示通告”字样)。 |
公示网址 | |
附件 | 沧源自治县2023年保障性租赁住房建设项目(勐来政府片区)总平面图
|






