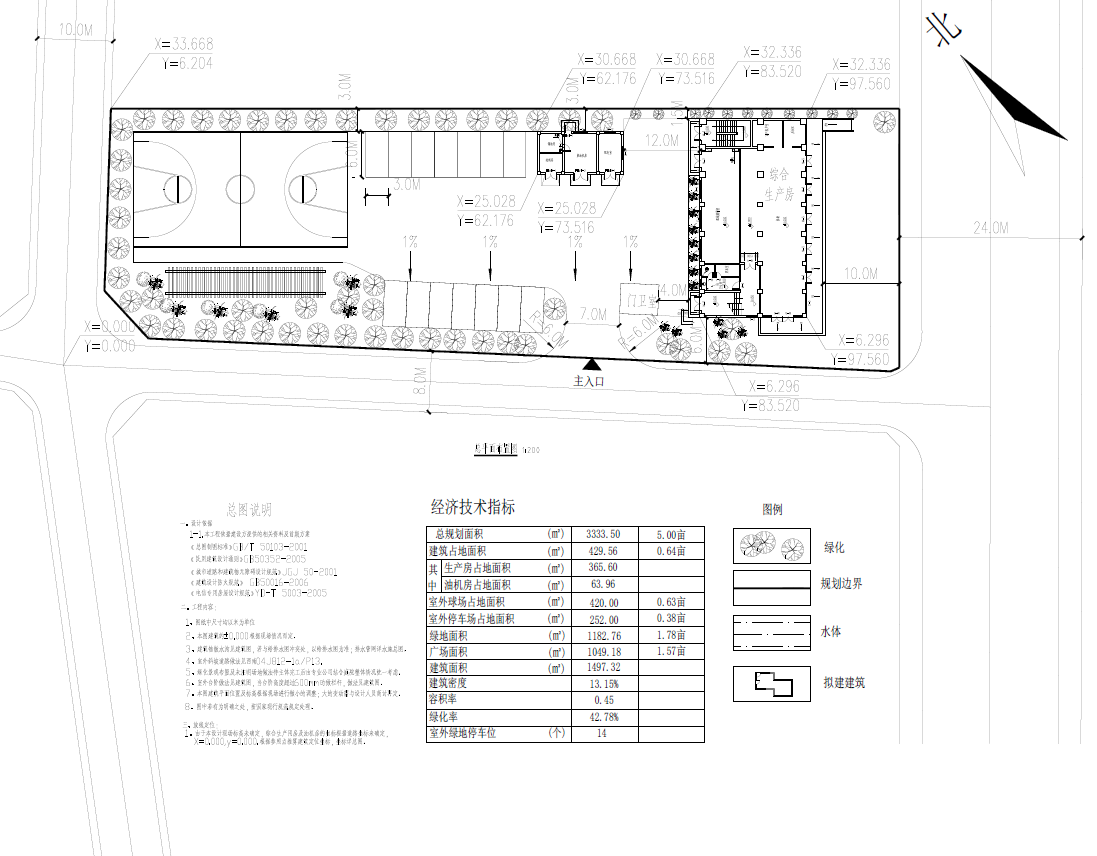
项目名称 | 沧源县电信生产综合用房建设工程项目 |
类型 | 批前公示 |
公示类别 | 建设工程规划核实意见 |
建设单位 | 中国电信股份有限公司沧源分公司 |
用地位置 | 门佤路林草局旁 |
建设工程许可证号 | 建字第530927201200090号 |
核实情况 | 总用地面积3333.00平方米(折合4.9995亩),总建筑面积1536.69平方米,建筑占地面积519.19平方米,建筑密度15.58%,容积率0.46,绿地面积1175.51平方米(绿地率35.27%),规划停车位9个,建筑高度20.40米。 |
公示期限 | 7个工作日(2025年10月23日 至2025年10月29日) |
联系电话 | 0883-7126375 |
联系邮箱 | cyxgtjghg@163.com |
说明 | 1.书面反馈(申请)意见发表时间或邮戳日不应超过公示期的最后一天24:00前,逾期视为无效意见。2.书面意见应注明真实联系人姓名、联系方式。3.信件寄往沧源县勐董镇广场路49号县自然资源局(请注明“公示通告”字样)。 |
公示网址 | |
附 件 | 沧源县电信生产综合用房建设工程项目建设工程总平面图
|







